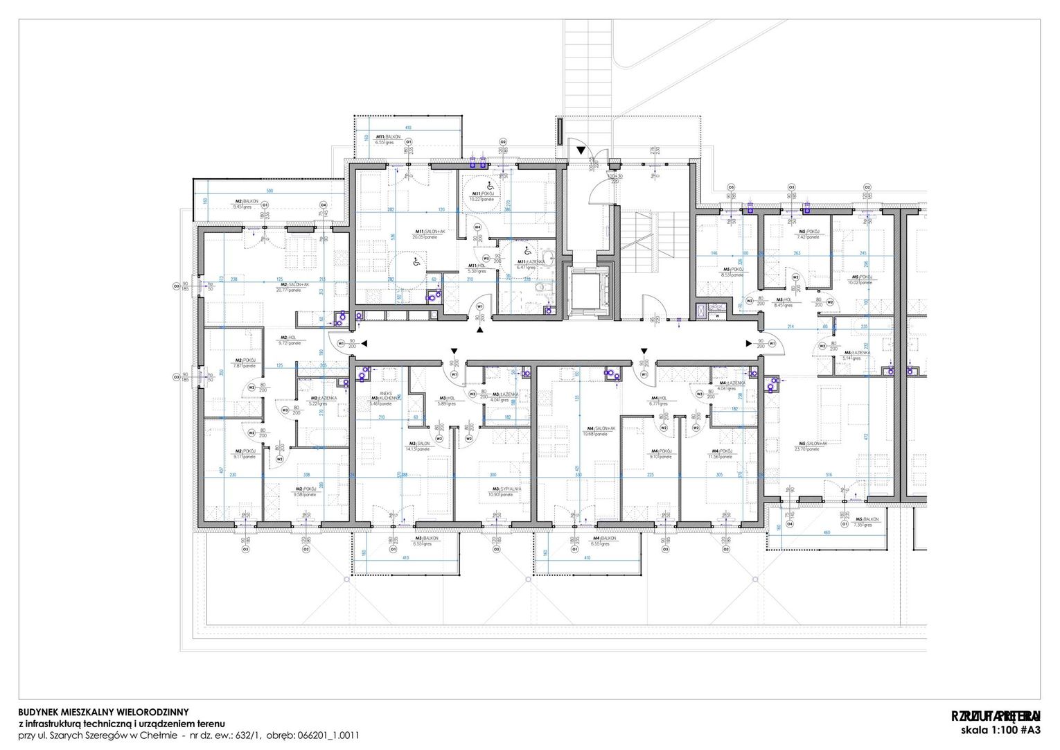
Na razie realizowana jest pierwsza część inwestycji, w ramach której wybudowany zostanie budynek z 50-cioma mieszkaniami. Po jej zakończeniu, rozpocznie się budowa kolejnego bloku - na 75 mieszkań.
- Obecnie TBS posiada jeszcze sześć wolnych mieszkań. Ich powierzchnia waha się w przedziale od 40 m2 do 63 m2. Mieszkania składają się z salonu z aneksem kuchennym, 2 lub 3 sypialni (w zależności od powierzchni mieszkania), łazienki oraz przedpokoju. Jak się dowiedzieliśmy, można jeszcze składać wnioski - mówi Bogdan Drygasiewicz, prezes Chełmskiego Towarzystwa Budownictwa Społecznego.
Wkład własny przyszłych najemców wynosi nieco ponad 2 tys zł za m2 mieszkania, przy średniej cenie mieszkań w Chełmie wynoszącej w chwili obecnej ponad 5 tys zł za m2.
Należy podkreślić, że zarówno pierwszy, jak i drugi budynek zostaną wyposażone w windy, a także podziemne parkingi.
![Chełm. Rośnie nowy blok TBS-u. Są jeszcze wolne mieszkania [ZDJĘCIA] Chełm. Rośnie nowy blok TBS-u. Są jeszcze wolne mieszkania [ZDJĘCIA]](https://static2.supertydzien.pl/data/articles/xl-chelm-rosnie-nowy-blok-tbs-u-sa-jeszcze-wolne-mieszkania-zdjecia-1666334435.jpg)









![Wypadek z udziałem dwóch samochodów. 3 osoby trafiły do szpitala [ZDJĘCIA]](https://static2.supertydzien.pl/data/articles/xga-4x3-bortatycze-kolonia-wypadek-z-udzialem-dwoch-samochodow-3-osoby-trafily-do-szpitala-zdjecia-1765725358.jpg)




![Chełm. W ubiegłym tygodniu odeszli od nas... [14-12-2025] W ubiegłym tygodniu odeszli do wieczności. Ostatnie pożegnanie naszych bliskich. Nekrologi z Chełma i powiatu chełmskiego.](https://static2.supertydzien.pl/data/articles/sm-4x3-chelm-w-ubieglym-tygodniu-odeszli-od-nas-7-12-2025-1765669947.jpg)






Napisz komentarz
Komentarze