
Wyjątkowa nieruchomość inwestycyjna -ul. Wolności!
2 219 000,00 zł
Opis
Jeśli szukasz nieruchomości pod inwestycję to ta oferta jest dla Ciebie!
Zapraszam do zapoznania się z wyjątkową nieruchomością inwestycyjną po dawnej piekarni zlokalizowaną w Chełmie przy ul. Wolności.
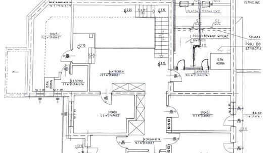
Na sprzedaż budynek mieszkalno-zakładowy znajdujący się w centralnej części skrzyżowania ulic Wojsławickiej i 3 Maja stanowiący doskonałą lokalizację pod inwestycję.
Nieruchomość o łącznej powierzchni 600 m2 usytuowana jest na ogrodzonej, 30 arowej działce.
W PLANIE ZAGOSPODAROWANIA PRZESTRZENNEGO:
-zabudowa wielorodzinna
-usługi handlu, rzemiosła, administracji
Cały budynek został podzielony na dwie strefy z oddzielnymi wejściami i składa się z:
-domu o powierzchni około 180 m2
-piwnicy o powierzchni 69 m2
-2 garaży mieszczących się w bryle budynku o powierzchni 32 m2
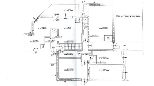
-zakładu o powierzchni około 350 m2
Część mieszkalna nieruchomości składa się z 8 pokoi, dużej kuchni z wyjściem na taras, antresoli, 3 łazienek.
Część zakładowa podzielona jest na kilka pomieszczeń, które dzięki swojej przestronności i wysokości (ponad 3m) dają bardzo dużo możliwości aranżacyjnych.
2 garaże w bryle budynku.
Media:
-woda miejska
-kanalizacja miejska
-ogrzewanie do wyboru: miejskie lub gazowe (nowy piec!)
-prąd
Dojazd drogą asfaltową.
Wjazd do nieruchomości wyłożony kostką brukową.
Od strony tarasu część zielona z nasadzeniami.
Nieruchomość ogrodzona, z bramą wjazdową.
ATUTY NIERUCHOMOŚCI:
-przeznaczenie w planie zagospodarowanie idealne pod inwestycję
-wszystkie media na działce (woda, prąd, gaz, kanalizacja)
-lokalizacja: w okolicy pełne zaplecze gospodarcze- sklepy, szkoły, uczelnia, las
-doskonała komunikacja z resztą miasta- przy nieruchomości znajduje się przystanek autobusowy oraz ścieżka rowerowa.
-przestrzeń na stworzenie miejsc parkingowych
Ta wszechstronna nieruchomość oferuje dużą elastyczność i potencjał inwestycyjny, stanowiąc idealne rozwiązanie dla różnych branż i przedsięwzięć.
Idealna pod stworzenie szkoły, przedszkola, przychodni, kompleksu medycznego, gastronomii, domu seniora i wielu innych inwestycji!
Nieruchomość może zarabiać na siebie nawet bez wkładu finansowego poprzez wynajem pokoi oraz miejsc na reklamę.
Oferta na wyłączność.
Zapraszam do kontaktu i na prezentację!
Pomagamy w formalnościach związanych z uzyskaniem kredytu na zakup nieruchomości.
Nasz doradca kredytowy bezpłatnie pomoże sprawdzić Ci zdolność kredytową i przedstawi najkorzystniejszą ofertę z ponad 10 banków!
Posiadasz podobną nieruchomość? Zadzwoń i skorzystaj z bezpłatnej konsultacji, gdzie odpowiem na pytania dotyczące Twojej nieruchomości, jej ceny oraz procesu sprzedaży.
Nie zwlekaj, zadzwoń już teraz!
Karolina Hurko
Doradca ds. nieruchomości
tel. 665 751 038
e-mail: [email protected]
Północ Nieruchomości oddział w Chełmie
Zapraszam do zapoznania się z wyjątkową nieruchomością inwestycyjną po dawnej piekarni zlokalizowaną w Chełmie przy ul. Wolności.
Na sprzedaż budynek mieszkalno-zakładowy znajdujący się w centralnej części skrzyżowania ulic Wojsławickiej i 3 Maja stanowiący doskonałą lokalizację pod inwestycję.
Nieruchomość o łącznej powierzchni 600 m2 usytuowana jest na ogrodzonej, 30 arowej działce.
W PLANIE ZAGOSPODAROWANIA PRZESTRZENNEGO:
-zabudowa wielorodzinna
-usługi handlu, rzemiosła, administracji
Cały budynek został podzielony na dwie strefy z oddzielnymi wejściami i składa się z:
-domu o powierzchni około 180 m2
-piwnicy o powierzchni 69 m2
-2 garaży mieszczących się w bryle budynku o powierzchni 32 m2
-zakładu o powierzchni około 350 m2
Część mieszkalna nieruchomości składa się z 8 pokoi, dużej kuchni z wyjściem na taras, antresoli, 3 łazienek.
Część zakładowa podzielona jest na kilka pomieszczeń, które dzięki swojej przestronności i wysokości (ponad 3m) dają bardzo dużo możliwości aranżacyjnych.
2 garaże w bryle budynku.
Media:
-woda miejska
-kanalizacja miejska
-ogrzewanie do wyboru: miejskie lub gazowe (nowy piec!)
-prąd
Dojazd drogą asfaltową.
Wjazd do nieruchomości wyłożony kostką brukową.
Od strony tarasu część zielona z nasadzeniami.
Nieruchomość ogrodzona, z bramą wjazdową.
ATUTY NIERUCHOMOŚCI:
-przeznaczenie w planie zagospodarowanie idealne pod inwestycję
-wszystkie media na działce (woda, prąd, gaz, kanalizacja)
-lokalizacja: w okolicy pełne zaplecze gospodarcze- sklepy, szkoły, uczelnia, las
-doskonała komunikacja z resztą miasta- przy nieruchomości znajduje się przystanek autobusowy oraz ścieżka rowerowa.
-przestrzeń na stworzenie miejsc parkingowych
Ta wszechstronna nieruchomość oferuje dużą elastyczność i potencjał inwestycyjny, stanowiąc idealne rozwiązanie dla różnych branż i przedsięwzięć.
Idealna pod stworzenie szkoły, przedszkola, przychodni, kompleksu medycznego, gastronomii, domu seniora i wielu innych inwestycji!
Nieruchomość może zarabiać na siebie nawet bez wkładu finansowego poprzez wynajem pokoi oraz miejsc na reklamę.
Oferta na wyłączność.
Zapraszam do kontaktu i na prezentację!
Pomagamy w formalnościach związanych z uzyskaniem kredytu na zakup nieruchomości.
Nasz doradca kredytowy bezpłatnie pomoże sprawdzić Ci zdolność kredytową i przedstawi najkorzystniejszą ofertę z ponad 10 banków!
Posiadasz podobną nieruchomość? Zadzwoń i skorzystaj z bezpłatnej konsultacji, gdzie odpowiem na pytania dotyczące Twojej nieruchomości, jej ceny oraz procesu sprzedaży.
Nie zwlekaj, zadzwoń już teraz!
Karolina Hurko
Doradca ds. nieruchomości
tel. 665 751 038
e-mail: [email protected]
Północ Nieruchomości oddział w Chełmie
Reklama


























